Назад

Оригинальные каталоги

zoom-in zoom-out enlarge shrink circle-right circle-left file-text2 info cart
Номер Наименование Цена
1/35615/21 1/35615/21 Шпилька Нет в продаже
130-3803151 130-3803151 Кронштейн крепления блока с контрольными лампами Нет в продаже
Г287-3701300 Г287-3701300 Крышка со стороны контактных колец с выпрямительным блоком в сборе Нет в продаже
5320-3827013 5320-3827013 5320-3827013 - прокладка 5320-3827013 Нет в продаже
252004-П8 252004-П8 Шайба плоская Нет в продаже
252005-П29 252005-П29 Шайба Нет в продаже
252006-П8 252006-П8 Шайба Нет в продаже
1/05172/73 1/05172/73 Шайба пружинная Нет в продаже
252134-П2 252134-П2 Шайба пружинная Нет в продаже
252135-П2 252135-П2 Шайба пружинная Нет в продаже
252136-П2 252136-П2 Шайба пружинная Нет в продаже
4 573 739 007 4 573 739 007 Колодка четырехклеммовая для наружных штекеров Нет в продаже
4 573 739 003 4 573 739 003 Колодка двухклеммовая для наружных штекеров Нет в продаже
4 573 739 012 4 573 739 012 Колодка восьмиконтактная для наружных штекеров Нет в продаже
201460-П29 201460-П29 Болт Нет в продаже
201424-П8 201424-П8 Болт Нет в продаже
1/59821/21 1/59821/21 1/59821/21 - болт 1 Нет в продаже
220105-П8 220105-П8 Винт Нет в продаже
220076-П8 220076-П8 Винт Нет в продаже
220103-П8 220103-П8 Винт Нет в продаже
164А-3722291 164А-3722291 Втулка Нет в продаже
1/21641/11 1/21641/11 Гайка Нет в продаже
251261-П8 251261-П8 Гайка Нет в продаже
250517-П29 250517-П29 Гайка Нет в продаже
303015-П 303015-П Гайкодержатель Нет в продаже
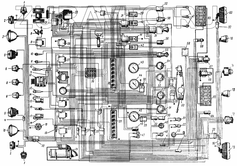
1 130Т-3726038 Фонарь сигнальный типа УП101 в сборе Нет в продаже
2 130Т-3712010-Б Фонарь передний типа ПФ130 в сборе Нет в продаже
3 130Т-3711010-В Фара типа ФГ150-Г в сборе Нет в продаже
4 4 573 739 004 Колодка двухклеммовая для внутренних штекеров Нет в продаже
5 133ВЯ-3743010 Фара противотуманная типа ФГ152-Б Нет в продаже
6 130Т-3726038 Фонарь сигнальный типа УП101 в сборе Нет в продаже
7 130Т-3730024-Б Электродвигатель отопителя в сборе Нет в продаже
8 130Т-3715060-А Лампа подкапотная типа ПД308-А в сборе Нет в продаже
9 130-3721225 Реле универсальное 111.3747 Нет в продаже
10 130-3829030 Датчик сигнализатора давления масла типа ММ111-Б Нет в продаже
11 130-3828030 Датчик сигнализатора температуры воды типа ТЛ111 Нет в продаже
12 133ВЯ-3740010 Свеча факельная штифтовая 12 В типа 13.3740 Нет в продаже
13 133ВЯ-3701010 Генератор переменного тока типа Г287В Нет в продаже
14 4 573 739 002 Колодка одноконтактная для внутренних штекеров Нет в продаже
15 133ВЯ-3740161 Клапан электромагнитный 12 В типа 13.3741 Нет в продаже
16 130Т-3828010 Датчик указателя температуры воды типа ТМ100-А Нет в продаже
17 130-3721125 Электромагнитный пневмоклапан в сборе Нет в продаже
18 130Т-3721020-Б Сигнал звуковой типа С311-В в сборе Нет в продаже
19 150Ю-3723076 Панель двухконтактная типа ПС4-А2 в сборе Нет в продаже
20 4 573 739 011 Колодка шестиконтактная для внутренних штекеров Нет в продаже
21 740.3708000 Стартер типа СТ-142-Б в сборе Нет в продаже
22 130Т-3708110-А Реле включения стартера типа РС502 в сборе Нет в продаже
23 130-3721225 Реле универсальное 111.3747 Нет в продаже
24 130-3721225 Реле универсальное 111.3747 Нет в продаже
25 133ВЯ-3721300 Сигнализатор шумовой типа РС508 в сборе Нет в продаже
26 131-3702010-Б Регулятор напряжения типа РР132 в сборе Нет в продаже
27 130-3721225 Реле универсальное 111.3747 Нет в продаже
28 130-3721225 Реле универсальное 111.3747 Нет в продаже
29 130-3722105 Предохранитель 6А Нет в продаже
30 4 573 739 008 Колодка четырехклеммовая для внутренних штекеров Нет в продаже
31 4 573 739 013 Колодка восьмиконтактная для внутренних штекеров Нет в продаже
32 130Т-3730166 Сопротивление электродвигателя дополнительное типа СЭ300 в сборе Нет в продаже
33 130Т-3726026 Прерыватель указателей поворота типа РС950 в сборе Нет в продаже
34 133ВЯ-3803135 Прерыватель контрольной лампы стояночного тормоза типа РС492 в сборе Нет в продаже
35 133ВЯ-3740104 Электротермореле типа 14.3741 электрофакельного подогревателя Нет в продаже
36 130-3722252-Б Панель крепления предохранителей Нет в продаже
37 ПД512 Блок контрольных ламп Нет в продаже
38 ПД511 Блок контрольных ламп Нет в продаже
40 П147.01.03 Переключатель противотуманных фар Нет в продаже
43 1302.3830 Манометр воздушный Нет в продаже
44 СП-154 Спидометр Нет в продаже
45 133ВЯ-3813010 Тахометр электрический типа ТХ144 Нет в продаже
46 130-3710110 Выключатель типа 11.3704 кнопочный Нет в продаже
47 133ВЯ-3830300 Датчик аварийного падения давления воздуха в пневмосистеме типа М124-Б Нет в продаже
48 133ВЯ-3720010 Выключатель сигнала торможения типа ММ 125 в сборе Нет в продаже
49 150Ю-3715020 Штепсельная розетка типа 47К в сборе Нет в продаже
50 133ВЯ-3813560 Датчик электрический тахометра типа МЭ307 в сборе Нет в продаже
51 13.3806 Указатель уровня топлива Нет в продаже
52 АП 171 Амперметр Нет в продаже
53 14.3807 Указатель температуры воды Нет в продаже
54 МД234 Манометр давления масла Нет в продаже
55 133ВЯ-3704010 Выключатель зажигания типа ВК353 в сборе Нет в продаже
56 130-3710110 Выключатель типа 11.3704 кнопочный Нет в продаже
57 130Т-3710150 Выключатель аварийной сигнализации типа ВК422-12 Нет в продаже
58 130Т-3710570 Выключатель типа ВК416-Б освещения щитка приборов Нет в продаже
59 130Т-3714010-В Плафон кабины типа ПК201-10 в сборе Нет в продаже
60 130Т-3709060-Б Переключатели света и указателей поворота типа П145 в сборе Нет в продаже
62 133ВЯ-3720010 Выключатель сигнала торможения типа ММ 125 в сборе Нет в продаже
63 130Т-3827010 Датчик указателя уровня топлива БМ165-В Нет в продаже
64 133ВЯ-3813560 Датчик электрический тахометра типа МЭ307 в сборе Нет в продаже
65 133ВЯ-3703010 Батарея аккумуляторная с электролитом заряженная Нет в продаже
66 130Т-3737010 Выключатель массы типа ВК-861 в сборе Нет в продаже
67 133ВЯ-3709140 Переключатель пусковой типа ВК-30-Б Нет в продаже
68 130Т-3710180 Выключатель света заднего хода типа ВК418 в сборе Нет в продаже
69 130Т-3716010 Фонарь задний правый типа ФП130-Б в сборе Нет в продаже
70 130-3716340 Фонарь заднего хода типа ФП135 в сборе Нет в продаже
71 131-3715020 Штепсельная розетка типа ПС400 в сборе Нет в продаже
72 164Ю-3716110 Розетка штепсельная прицепа типа ПС300А-100 в сборе Нет в продаже
73 130Т-3716011 Фонарь задний левый типа ФП130 в сборе Нет в продаже
1
1
2
2
3
3
4
4
4
4
4
4
5
5
6
6
6
7
8
9
10
11
12
12
13
14
14
15
16
17
18
19
20
20
20
20
20
20
20
20
21
22
23
24
25
26
27
28
29
30
30
30
30
30
30
31
31
31
31
32
33
34
35
36
37
38
40
43
44
45
46
47
47
48
49
50
51
52
53
54
55
56
57
58
59
60
62
63
64
65
65
66
67
68
69
70
70
71
72
73
100%
Содержащиеся в справочниках-каталогах запасные части и детали носят исключительно информационный характер