Назад

Оригинальные каталоги

zoom-in zoom-out enlarge shrink circle-right circle-left file-text2 info cart
Номер Наименование Цена
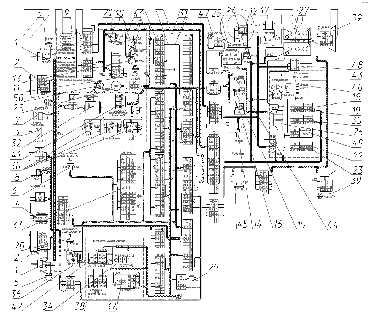
1 Указателиповорота Указатели поворота Нет в продаже
2 Фары Фары Нет в продаже
3 Стеклоочиститель Стеклоочиститель Нет в продаже
4 Плафон Плафон Нет в продаже
5 Повторитель Повторитель поворота Нет в продаже
6 Включататель Включататель стоп-сигнала Нет в продаже
7 Сигнал Звуковой сигнал Нет в продаже
8 Стеклоомыватель Стеклоомыватель Нет в продаже
9 ЭПП ЭПП Нет в продаже
10 Включатель«массы» Включатель «массы» Нет в продаже
11 Включательстартера Включатель стартера Нет в продаже
12 Датчик Датчик уровня топлива Нет в продаже
13 Включениесвечей Включение свечей накаливания Нет в продаже
14 Датчик Датчик уровня топлива Нет в продаже
15 Электромагнитныеклапаны Электромагнитные клапаны скоростей Нет в продаже
16 Электромагнитныйклапан Электромагнитный клапан холостого хода Нет в продаже
17 Включатель«массы» Включатель «массы» Нет в продаже
18 Датчикдавления Датчик аварийного давления масла в двигателе Нет в продаже
19 Датчикдавления Датчик аварийного давления масла в двигателе Нет в продаже
20 Концевойвыключатель Концевой выключатель гидросистемы Нет в продаже
21 Контрольнаялампа Контрольная лампа работы генератора Нет в продаже
22 Датчик Датчик уровня топлива Нет в продаже
23 Датчикаварийнойтемперат.охлажд.жидкости Датчик аварийной температ. охлажд. жидкости Нет в продаже
24 Дистанционныйвключатель Дистанционный включатель свечей накаливания Нет в продаже
25 Реле Реле стартера Нет в продаже
26 Стартер Стартер Нет в продаже
27 Батареи Аккумуляторные батареи Нет в продаже
28 Кнопкасигнала Кнопка звукового сиглала Нет в продаже
29 Отопитель Отопитель Нет в продаже
30 Реле Реле стартера Нет в продаже
31 Монтажныйблок Монтажный блок Нет в продаже
32 Прикуриватель Прикуриватель Нет в продаже
33 Переключатель Подрулевой переключатель Нет в продаже
34 Включательотопителя Включатель отопителя Нет в продаже
35 Стоп-соленоид Стоп-соленоид Нет в продаже
36 Реле Реле стартера Нет в продаже
37 Включатель Включатель Нет в продаже
38 Включатель Включатель Нет в продаже
39 Фонари Фонари задние Нет в продаже
40 Генератор Генератор Нет в продаже
41 Включатель Включатель Нет в продаже
42 Включатель Включатель Нет в продаже
43 Свечи Свечи накаливания Нет в продаже
44 ЭСУ ЭСУ стояночного тормоза Нет в продаже
45 Фонарь Фонарь номерного знака Нет в продаже
46 Контрольнаялампа Контрольная лампа работы генератора Нет в продаже
47 Фара Фара стрелы Нет в продаже
48 Топливныйфильтр Топливный фильтр Нет в продаже
49 Холодныйпуск Холодный пуск Нет в продаже
50 Контрольнаялампа Контрольная лампа работы генератора Нет в продаже
1
1
2
2
3
4
5
5
6
7
8
9
10
11
12
13
14
15
16
17
18
19
20
21
22
23
24
25
26
27
28
29
30
31
32
33
34
35
36
37
38
39
39
40
41
42
43
44
45
46
47
48
49
50
100%
Содержащиеся в справочниках-каталогах запасные части и детали носят исключительно информационный характер